42+ Denah Rumah Type 36 Skala 1 100, Konsep Spesial!
Oktober 01, 2020
Denah Rumah Skala 1 100, denah rumah type 36 skala 1 50, Denah Rumah skala 1 50, Denah rumah skala 1 200 , Gambar Denah Rumah Dengan Skala 1 banding 50, Cara menggambar denah rumah dengan skala 1 100, Skala Rumah Minimalis, Denah rumah skala 1 1000, Denah rumah minimalis, Denah Rumah sederhana, Cara Membuat Denah Rumah Dengan Skala 1 50, Skala 1 100 artinya,
42+ Denah Rumah Type 36 Skala 1 100, Konsep Spesial! - Mempunyai sebuah tempat tinggal bukanlah hal yang mudah apalagi Anda mengingingkan denah kediaman type 36 skala 1 100 sebagai bagian sejuk dari kediaman anda. Denah Rumah yaitu salah satu material yang paling ideal untuk interior rumah yang minimalis dan punya fungsionalitas tinggi. Ukuran denah tempat tinggal type 36 skala 1 100 sedang hingga besar bisa Anda pilih dan susun untuk mendapatkan tampilan ruangan yang paling sejuk. Pola denah hunian ini akan semakin menarik kalau menggunakan furnitur senada, apalagi bila ditambah dengan unsur vintage lucu dan unik.
Penampilan yang baik, mungkin tak sedikit dana yang harus anda keluarkan. Asal anda bisa membuat ide-ide tentang denah rumah yang cemerlang, tentunya akan irit anggaran. Apakah anda tertarik dengan denah rumah type 36 skala 1 100?, dengan pembahasan tentang denah rumah dibawah ini, semoga bisa menjadi pilihan inspirasi anda.Ulasan kali ini terkait denah rumah dengan judul artikel 42+ Denah Rumah Type 36 Skala 1 100, Konsep Spesial! berikut ini.

38 Gambar Denah Rumah Mewah Type 100 Terkini . Sumber Gambar : rumahkutop.blogspot.com
Denah Rumah Type 36 Skala 1 100 seon co id
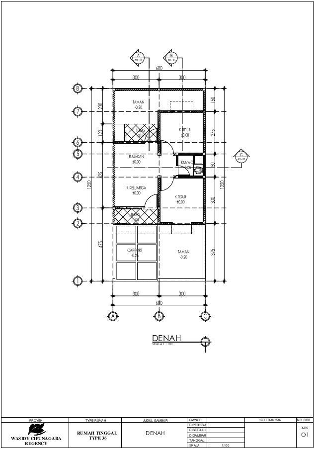
2 4 2019 Denah rumah type 36 skala 1 100 Contoh denah rumah dengan skala hunian yakni sebagai buat menikmati hidup yang damai wadah untuk tidur dan wadah buat menonjolkan tingkat sosial di masyarakat Denah rumah dengan skala 1 banding 100 adalah salah satu model konsep yang cukup terkenal tak lekang oleh masa Desain rumah sederhana 6 12

Gambar rumah type 36 . Sumber Gambar : www.slideshare.net
Arti skala 1 100 pada gambar desain bangunan ilmuRumah com
7 23 2011 Skala 1 100 Artinya setiap 1 cm mewakili 100 cm digunakan pada gambar denah rumah tampak depan atau samping rumah denah atap denah pola lantai denah pondasi gambar shop drawing pelaksanaan dll Skala 1 1000 Sering digunakan untuk menggambarkan obyek yang besar seperti peta kontur tanah gedung bertingkat tinggi dll Skala 1 20

Contoh Denah Rumah Minimalis Type 36 78 Solusi Hunian . Sumber Gambar : rumahminimalisnet.blogspot.com
Gambar Denah Rumah 1 Lantai Skala 1 100
Gambar Denah Rumah 1 Lantai Skala 1 100 Gambar Desain Rumah Minimalis Modern RumahMinimalisOI com Monday 20 July 2020 02 48 50 Home Desain dan Denah Rumah Minimalis Type 120 Rumah minimalis type 45 termasuk jenis rumah minimalis dengan luas bangunan yang cukup besar jika dibandingkan dengan rumah minimalis type 21 atau type 36

100 Denah Rumah Minimalis Hook 1 Lantai Gambar Desain . Sumber Gambar : desainrumah54.blogspot.com
Gambar Rumah Type 120 Skala 1 100 Dena Tampak Potongan
Tergolong type yang besar rumah type 120 membutuhkan kecermatan dan ketelitian dalam pengukuran agar biaya pembangunan tidak terlalu banyak Dibutuhkan desain dan denah rumah minimalis type 120 untuk memudahkan Anda mudah dalam menata komponen pada rumah Nah berikut ini kami sajikan ulasan Denah dan desain Rumah Minimalis Type 120 1 dan 2

Denah Rumah Minimalis Type 45 100 Griya Inspiratif . Sumber Gambar : griyainspiratifmodern.blogspot.com
Denah Rumah Type 36 Luas Tanah 72 seon co id
1 12 2019 Denah Rumah Type 36 Skala 1 100 Tips Sebelum Membeli HP Xiaomi Apa Itu Mompreneur Dan Cara Untuk Menjadi Seorang Mompreneur 8 Bisnis Waralaba Terbaru Modal Kecil Untung Besar 7 Bisnis Ibu Rumah Tangga Mompreneur Terbaru 2019 pengertian prestasi menurut para ahli Apa itu Bing Ads
Arsitek Rumah minimalis Type 108 Skala Gambar 1 100 . Sumber Gambar : www.facebook.com
Rumah Type 100 120 140 160 Dst Denah Gambar Dan Ukuran
Denah Tipe 36 l Terbaik 12 Denah Tipe 36 90 Denah Tipe 36 l Berikut adalah gambar denah rumah dengan Tipe 36 90 yang artinya denah tersebut memiliki ukuran rencana bangunan dengan luas bangunan yang direncanakan adalah 36 m2 meter persegi dan dibangun diatas tanah dengan luas tanah 90 m2 meter persegi Seiring perkembangan zaman yang semakin modern pembuat denah

NEW GAMBAR DENAH RUMAH SKALA 1 100 . Sumber Gambar : denah-2.blogspot.com
Denah Tipe 36 Arsip Kursus Privat AutoCad 2D 3D 3D
10 Denah Rumah Tipe 36 Yang Sederhana Walaupun rumah dengan tipe ini memiliki ukuran yang tidak luas tetapi anda dapat menjadikannya rumah yang sangat nyaman maka dari itu anda perlu perencanaan dan salah satu yang perlu anda rencanakan adalah denah rumah yang tepat sesuai dengan kebutuhan anda dengan menyesuaikan ukuran lahan

9 sketsa denah rumah modern minimalis type 36 dengan 2 . Sumber Gambar : desainrumahminimalistype36.blogspot.com
10 Denah Rumah Tipe 36 Sederhana Minimalis
6 1 2019 Contoh Desain Gambar Denah Rumah Minimalis 3 Kamar Tidur ada garasi 3d modern dan sederhana sketsa type 36 dan ukuran 6x12 7x9 sederhana

38 Gambar Denah Rumah Mewah Type 100 Terkini . Sumber Gambar : rumahkutop.blogspot.com
35 Contoh Gambar Denah Rumah Minimalis 3 Kamar Tidur
Berikut ini adalah contoh desain rumah sederhana 6x12 1 lantai dengan tipe 45 rumah minimalis sederhana Desain rumah sederhana 6x12 1 lantai Sumber rhkarya com Desain rumah sederhana 6x12 1 lantai Sumber snowpolodavos com Denah rumah 2 kamar 1 lantai Rumah Tipe 36 Di Jatihandap karya Andiyanto Purwono st Architect Sumber arsitag com

Rumah Minimalis Cat Abu Abu terbaru Denah Rumah Type 100 . Sumber Gambar : rumahminimaliscatabuabu2016.blogspot.com
15 Contoh Denah Rumah Minimalis Modern Nyaman dan

Denah Rumah Dengan Skala 1 100 Sekitar Rumah . Sumber Gambar : sekitaranrumah.blogspot.com

Denah Rumah Minimalis Type 45 100 Griya Inspiratif . Sumber Gambar : griyainspiratifmodern.blogspot.com
Penting 37 Denah Rumah Type 36 Skala 1 100 Denah Rumah . Sumber Gambar : desaindapurminimalisterbuka.blogspot.com
NEW GAMBAR DENAH RUMAH SKALA 1 100 . Sumber Gambar : denah-2.blogspot.com
Contoh Denah Rumah Dengan Skala Desain Rumah . Sumber Gambar : desainrumahbaruu.blogspot.com

Contoh Denah Rumah Dengan Skala Desain Rumah . Sumber Gambar : desainrumahbaruu.blogspot.com
Tren Gaya 12 Gambar Denah Rumah Type 36 Skala 1 50 Simple . Sumber Gambar : dapurminimalisshabbychic.blogspot.com
Desain Rumah Luas Tanah 6 X 15 Gambarrrrrrr . Sumber Gambar : gambarrrrrrr.blogspot.com

Gambar Instalasi Listrik Rumah Gambar Denah Skala di . Sumber Gambar : rebanas.com

layout rumah type 100 1 lantai Google Search Design . Sumber Gambar : www.pinterest.com

Model Denah Rumah Type 100 Dwg Denahose . Sumber Gambar : denahose.blogspot.com

Denah atap type 100 . Sumber Gambar : www.slideshare.net

Gambar Contoh Denah Rumah Dengan Skala Rumahmen . Sumber Gambar : rumahmen.blogspot.com

Contoh Gambar Desain Rumah 6x6 Informasi Desain dan Tipe . Sumber Gambar : rumahkita.id

Gambar Contoh Denah Rumah Dengan Skala Rumahmen . Sumber Gambar : rumahmen.blogspot.com

Beberapa Desain Rumah Minimalis Terbaik . Sumber Gambar : berkerblog.blogspot.com

Gambar Denah Rumah Design Rumah Minimalis . Sumber Gambar : allrumahminimalis.blogspot.com

Lane Property Bali 01 07 13 . Sumber Gambar : laneproperty.blogspot.com

Gambar Contoh Denah Rumah Dengan Skala Rumahmen . Sumber Gambar : rumahmen.blogspot.com

Contoh Denah Rumah Minimalis Type 36 78 Solusi Hunian . Sumber Gambar : rumahminimalisnet.blogspot.com
Denah Tipe 45 a . Sumber Gambar : indodesigncenter.com

Rumah Minimalis Tipe 36 6 Denah Rumah Minimalis Satu Lantai . Sumber Gambar : www.satujam.com

100 Model Pagar Rumah Minimalis Type 22 60 Typehom . Sumber Gambar : typehom.blogspot.com

Rumah Denah Gallery Taman Minimalis . Sumber Gambar : gallerytamanminimalis.blogspot.com

7 Contoh Desain Rumah Minimalis Modern Ukuran 36 Yang . Sumber Gambar : arsitekindonesia.id